
Hibiscus
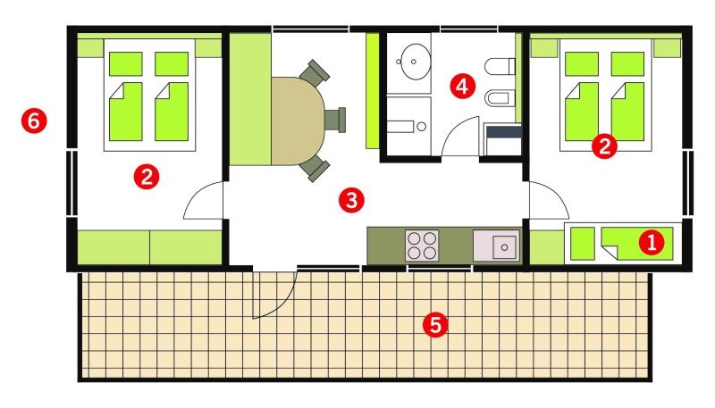
45 m²
max 5

- Einzelbett
- Doppelbett
- Wohnzimmer mit Kochnische
- Badezimmer
- Terrasse mit Veranda
- Parkplatz
Ein Haus voller Sonnenlicht und Leichtigkeit, in dem alles den Geschmack eines gut gelebten Sommers trägt.
Hibiscus braucht keine aufwendige Vorstellung: Es zeigt sich so, wie es ist – mit seiner sanften Energie und spontanen Herzlichkeit. Perfekt für alle, die ein Gleichgewicht zwischen Lebendigkeit und Ruhe suchen, zwischen dem Wunsch, hinauszugehen, und dem Vergnügen, zu Hause zu bleiben. Die ideale Wahl für alle, die das Frühstück im Freien lieben, die stillen Heimkehrmomente am Ende des Tages und Veranden, die alles aufnehmen können: Gespräche, Sand und Atemzüge. Es braucht keine komplizierten Regeln – nur gesunden Menschenverstand und Achtsamkeit für das, was uns umgibt. Und vielleicht ein wenig Dankbarkeit für den Schatten, die Stille und die Zeit, die – ausnahmsweise – nicht davonläuft.
Inbegriffene Ausstattung

Wissenswertes (ganz ohne Eile)
Check-in
ab 15.00 Uhr
Check-out
vor 9.00 Uhr
Kassenöffnungszeiten
8.00 - 21.00
Zahlungen
In bar oder mit gängigen Kreditkarten
Aufenthalt
Hibiscus mag es nicht eilig. Er erwartet Sie für kurze Aufenthalte in den ruhigeren Monaten und für ganze Wochen, wenn die Sonne am höchsten steht und die Tage kein Ende zu nehmen scheinen.
Check-in und Check-out
Die Ankunft ist ab drei Uhr nachmittags bis spät am Abend möglich. Die Abreise hingegen erfordert Aufmerksamkeit: bis neun Uhr morgens, um Platz und Aufmerksamkeit für diejenigen zu lassen, die nach Ihnen kommen.
Zusätzliche Gäste
Zusätzliche Gäste? Kein Problem, sie werden gemäß unserer Preisliste berechnet.
Haustiere sind nicht erlaubt
Wir lieben Tiere sehr. Wir haben uns lediglich dagegen entschieden, sie aufzunehmen, um das natürliche Gleichgewicht zu bewahren, das unsere grüne Oase so einzigartig macht.
Zusätzliche Informationen
Die Restzahlung des Aufenthalts kann bis zum Tag vor der Abreise erfolgen. Die Bezahlung ist in bar (im Rahmen der gesetzlich zulässigen Grenzen) oder mit Visa-, Mastercard- oder Maestro-Karten möglich. Die Kurtaxe wird am Ende des Aufenthalts gemäß den Bestimmungen der Gemeinde berechnet.





